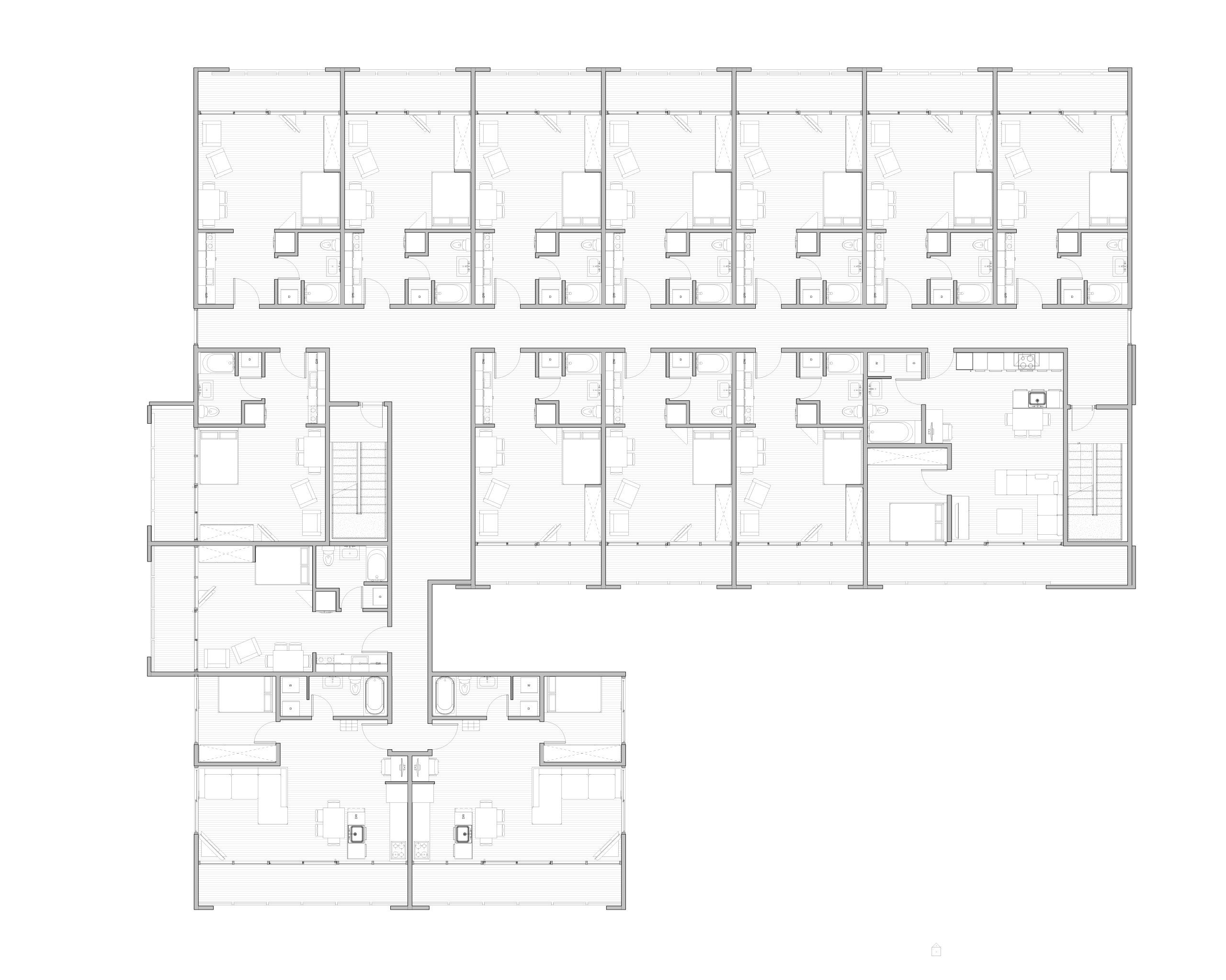
‘Small Apartment Building’ Design Competition
Location:
Oregon, USA
Program:
Residential
Category:
Area:
20,700 sq.ft.
First prize winner of the Arcbazar ‘Small Apartment Building’ Design Competition (May 2021). Currently under construction.

Visualization 1

Visualization 2: Site & Surroundings

Visualization 3



Studio Apartment Layout